75 000 €
(925,93 €/m²)
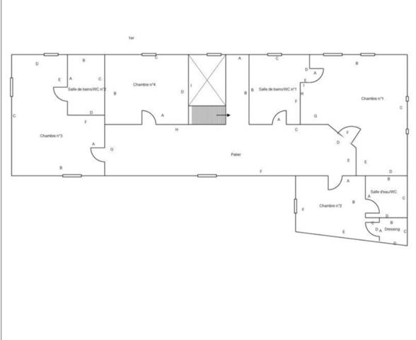
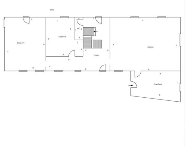
Maison
• 4 pièces
• 81 m²
| query_stats | +8% | par rapport au prix moyen dans la zone |
| place | Ciron | |
| event | Le 24 février | |