300 000 €
(2 500 €/m²)
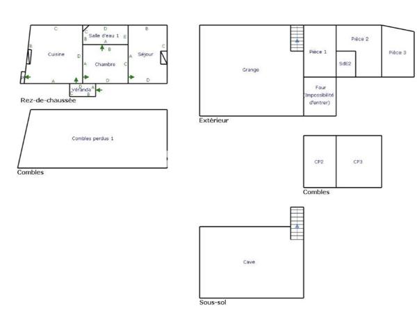
Maison
• 4 pièces
• 120 m²
| query_stats | +42% | par rapport au prix moyen dans la zone |
| place | Huisseau-sur-Cosson | |
| event | Le 4 mars | |