238 000 €
(2 704,55 €/m²)
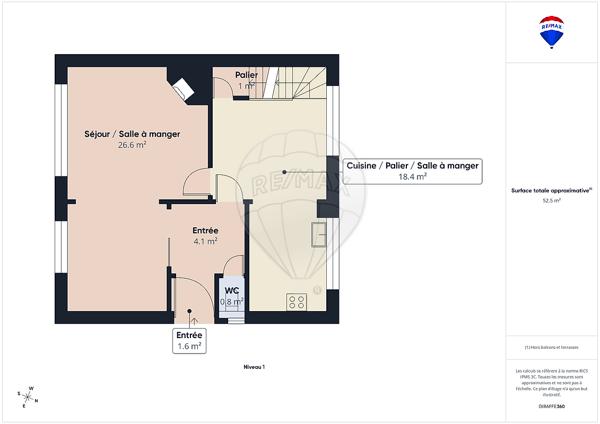
Appartement
• 3 pièces
• 88 m²
| query_stats | -8% | par rapport au prix moyen dans la zone |
| savings | 6.14% | de rentabilité brute |
| place | Audun-le-Tiche | |
| event | Hier | |