trending_down
153 700 €
(1 056,94 €/m²)
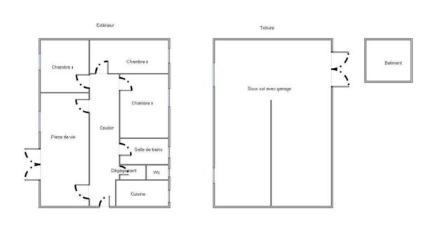
Maison
• 7 pièces
• 145 m²
| query_stats | +32% | par rapport au prix moyen dans la zone |
| place | Saint-Michel | |
| event |
Le 12 mars
Modifié hier |
|