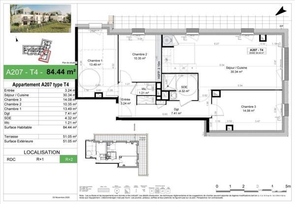
7 biens immobiliers à vendre à Carpiquet

sort