100 700 €
(729,71 €/m²)
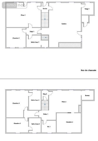
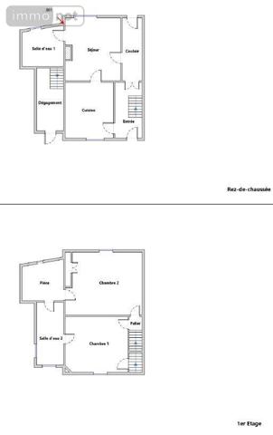
Maison
• 5 pièces
• 138 m²
| query_stats | -13% | par rapport au prix moyen dans la zone |
| place | Bort-les-Orgues | |
| event |
Le 1er avril
Modifié le 7 avril |
|