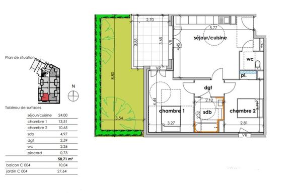
234 900 €
(3 559,09 €/m²)
Appartement
• 3 pièces
• 66 m²
| query_stats | -12% | par rapport au prix moyen dans la zone |
| place | Sauvian | |
| event | Aujourd'hui | |