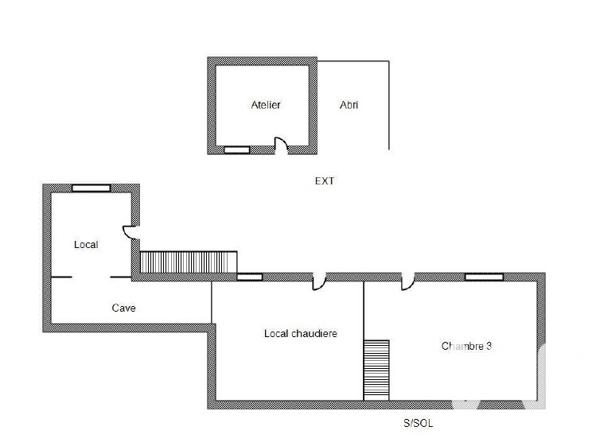
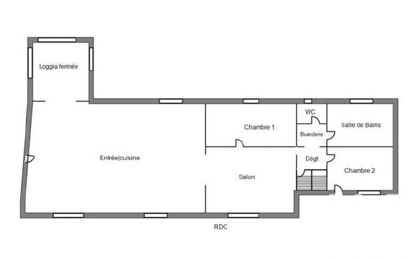
108 biens immobiliers à vendre à Loire-Authion

sort
  • 1
  • 2
  • >