170 000 €
(3 953,49 €/m²)
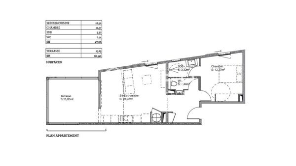
Appartement
• 2 pièces
• 43 m²
| query_stats | -10% | par rapport au prix moyen dans la zone |
| place | Le Marin | |
| event | Le 4 décembre | |