896 €/mois
(19,74 €/m²)
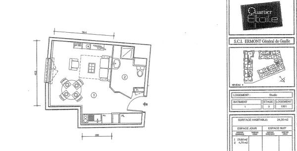
Appartement
• 2 pièces
• 45 m²
| place | Ermont, Jules Ferry | |
| event |
Le 5 février
Modifié aujourd'hui |
|