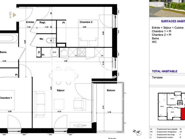
1 435 €/mois
(14,07 €/m²)
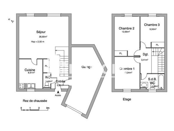
Maison
• 5 pièces
• 102 m²
| place | Audenge | |
| event | Le 21 avril | |