532 €/mois
(25,08 €/m²)
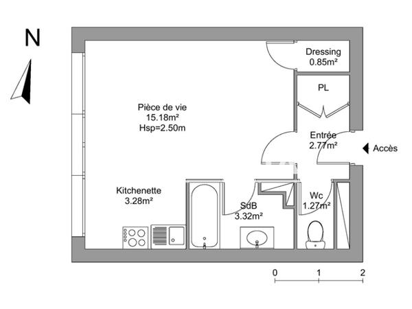
Appartement
• 21 m²
| place | Talence | |
| event | Le 28 février | |