trending_down
584 €/mois
(15,24 €/m²)
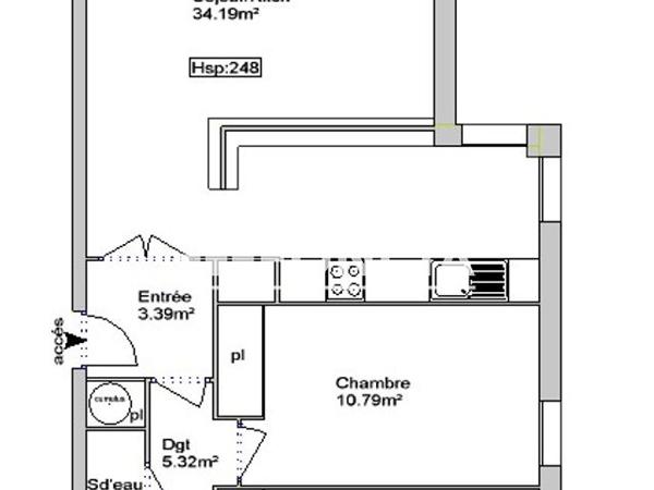
Appartement
• 2 pièces
• 38 m²
| place | Castanet-Tolosan | |
| event |
Le 13 février
Modifié le 20 mars |
|