trending_down
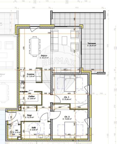
99 000 €
(1 031,25 €/m²)
Appartement
• 4 pièces
• 96 m²
| query_stats | -49% | par rapport au prix moyen dans la zone |
| place | Grosbliederstroff | |
| event |
Le 29 octobre 2025
Modifié hier |
|