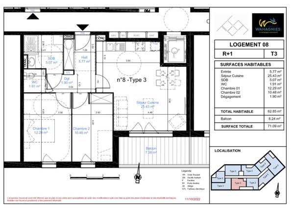
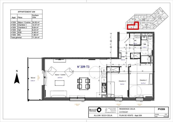
Prix au m²
3 152 €
Entre 3 119 € et 3 185 €

query_statsStatistiques

2 appartements à vendre à Wahagnies

sort
Appartement close