Prix au m²
5 688 €
Entre 3 169 € et 9 348 €

query_statsStatistiques

54 appartements à vendre à Wimereux

sort
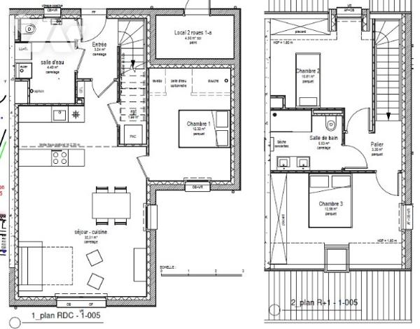
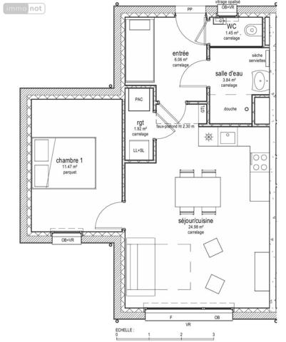
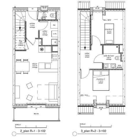
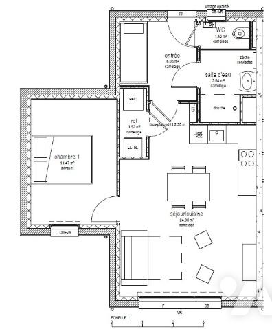
Appartement close

Affinez votre recherche

À voir aussi dans la ville de Wimereux