Prix au m²
3 635 €
Entre 3 635 € et 5 000 €

query_statsStatistiques

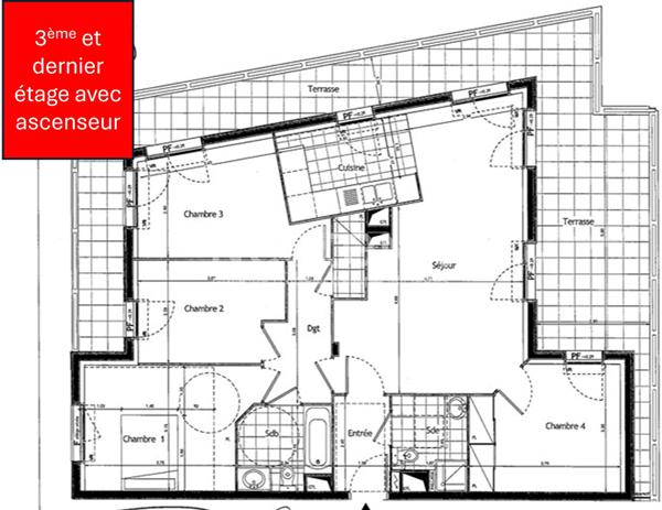
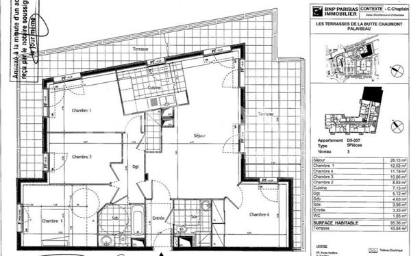
3 appartements avec terrasse à vendre à Palaiseau - Est

sort
Appartement close
Quartier Est close
Terrasse close

À voir aussi dans la ville de Palaiseau