trending_down
99 900 €
(2 836,46 €/m²)
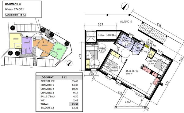
Appartement
• 2 pièces
• 35 m²
| query_stats | +11% | par rapport au prix moyen dans la zone |
| savings | 5.55% | de rentabilité brute |
| place | Les Herbiers | |
| event |
Le 24 février
Modifié le 28 avril |
|