65 000 €
(2 407,41 €/m²)
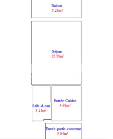
Appartement
• 1 pièce
• 27 m²
| query_stats | -20% | par rapport au prix moyen dans la zone |
| savings | 8.06% | de rentabilité brute |
| place | Peymeinade | |
| event | Le 14 novembre | |