499 000 €
(4 158,33 €/m²)
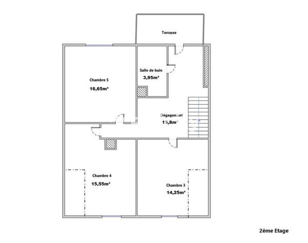
Immeuble
• 7 pièces
• 120 m²
| place | Weyersheim | |
| event | Le 1er mai | |