trending_down
314 700 €
(1 639,06 €/m²)
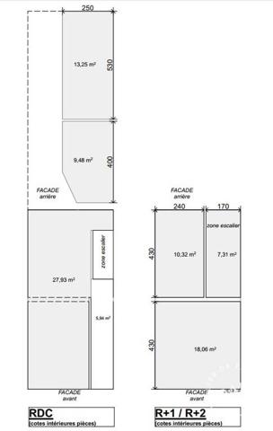
Immeuble
• 10 pièces
• 192 m²
| query_stats | +4% | par rapport au prix moyen dans la zone |
| place | Bailleul | |
| event |
Le 27 octobre
Modifié le 5 décembre |
|