65 000 €
(631,07 €/m²)
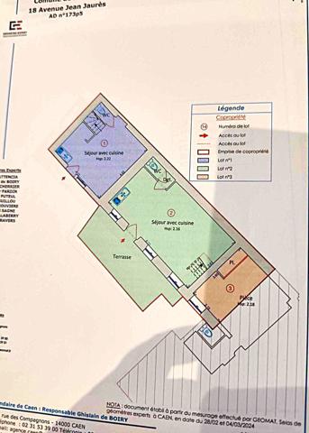
Immeuble
• 2 pièces
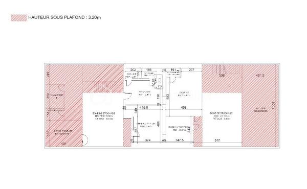
• 103 m²
| query_stats | -55% | par rapport au prix moyen dans la zone |
| place | Lisieux | |
| event |
Le 3 décembre
Modifié hier |
|