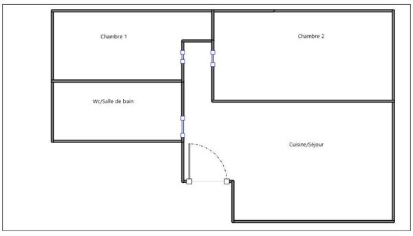
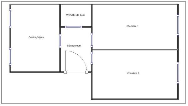
372 750 €
(4 490,96 €/m²)
Appartement
• 3 pièces
• 83 m²
| query_stats | +18% | par rapport au prix moyen dans la zone |
| savings | 5.51% | de rentabilité brute |
| place | Gaillard | |
| event | Le 30 avril | |