trending_down
75 500 €
(1 094,2 €/m²)
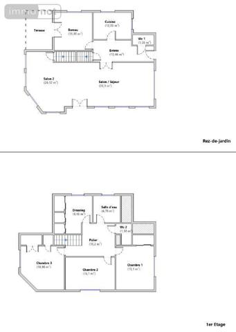
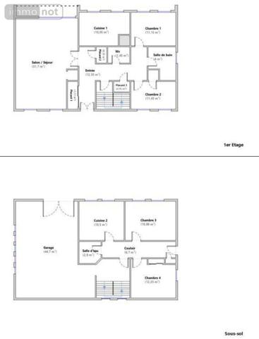
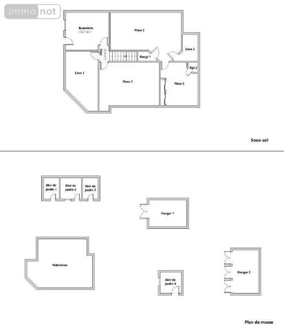
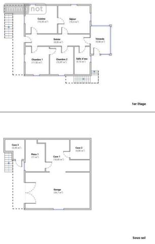
Maison
• 4 pièces
• 69 m²
query_stats | +4% | par rapport au prix moyen dans la zone |
place | Ydes | |
event |
Le 14 juin
Modifié le 28 septembre |