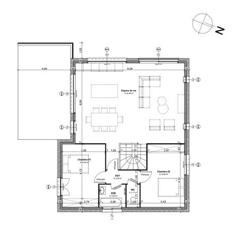
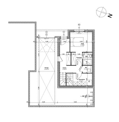
3 maisons à vendre à Vaulx

sort
Maison close