trending_down
136 500 €
(1 365 €/m²)
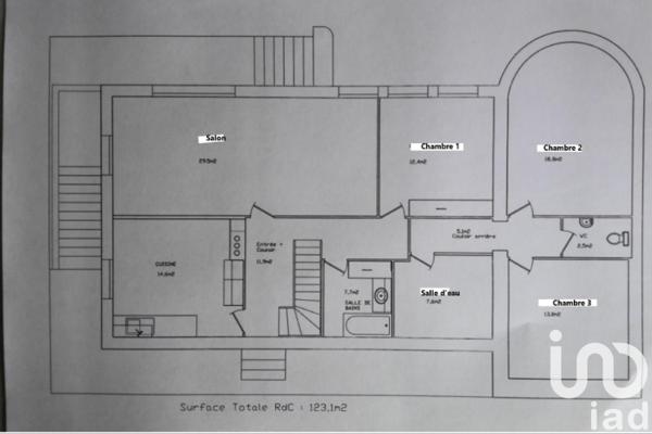
Maison
• 1 pièce
• 100 m²
query_stats | -39% | par rapport au prix moyen dans la zone |
place | Rives | |
event |
Le 26 août 2024
Modifié le 28 septembre |