trending_down
159 000 €
(1 382,61 €/m²)
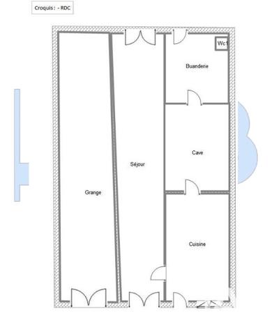
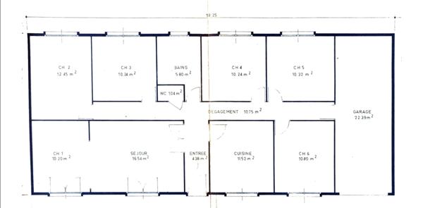
Maison
• 5 pièces
• 115 m²
| query_stats | +33% | par rapport au prix moyen dans la zone |
| place | Étival | |
| event |
Le 30 septembre 2025
Modifié aujourd'hui |
|