trending_down
38 800 €
(596,92 €/m²)
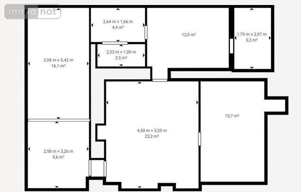
Maison
• 3 pièces
• 65 m²
query_stats | -41% | par rapport au prix moyen dans la zone |
place | Maël-Carhaix | |
event |
Le 21 janvier 2024
Modifié hier |