trending_down
625 000 €
(4 222,97 €/m²)
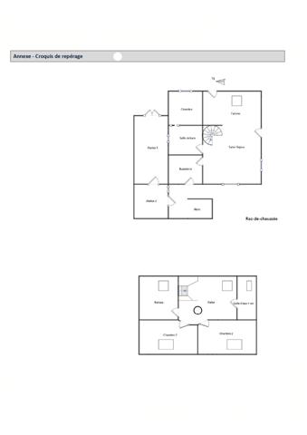
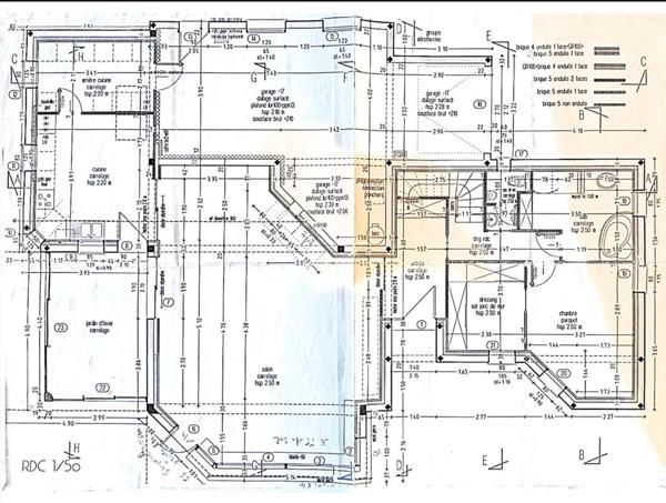
Maison
• 6 pièces
• 148 m²
| query_stats | +37% | par rapport au prix moyen dans la zone |
| savings | 2.64% | de rentabilité brute |
| place | Surzur | |
| event |
Le 28 octobre
Modifié le 13 novembre |
|