trending_down
561 000 €
(2 439,13 €/m²)
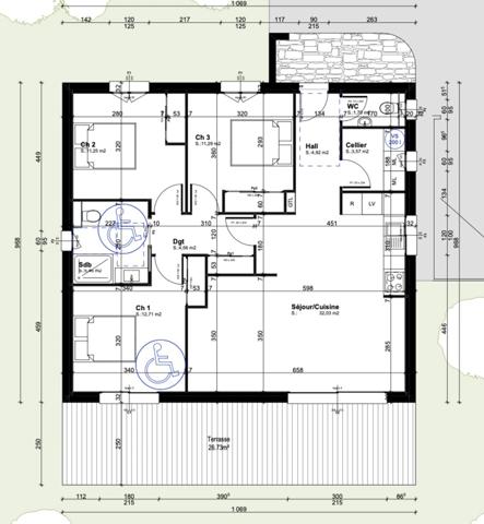
Maison
• 6 pièces
• 230 m²
| query_stats | -22% | par rapport au prix moyen dans la zone |
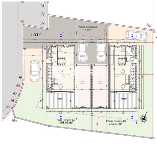
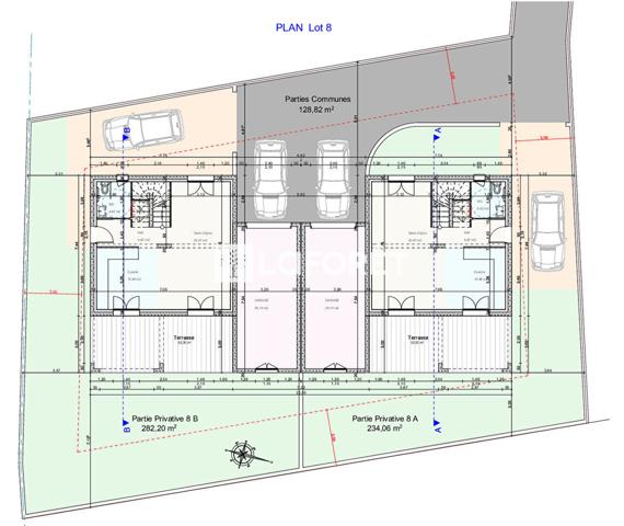
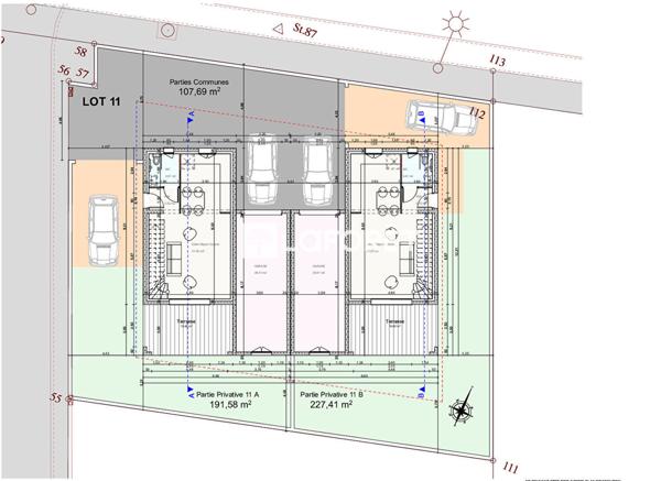
| place | Penta-di-Casinca | |
| event |
Le 28 août
Modifié aujourd'hui |
|