trending_down
169 000 €
(1 456,9 €/m²)
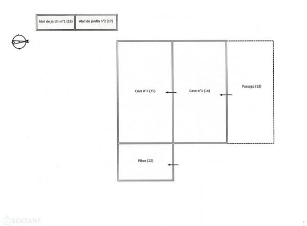
Maison
• 5 pièces
• 116 m²
| query_stats | -6% | par rapport au prix moyen dans la zone |
| place | Fismes | |
| event |
Le 23 avril
Modifié le 17 décembre |
|