137 500 €
(1 936,62 €/m²)
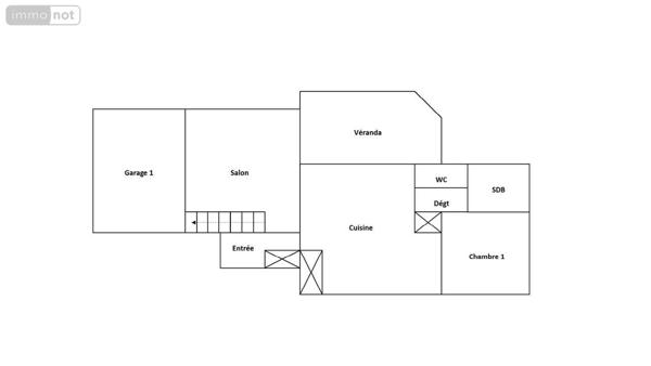
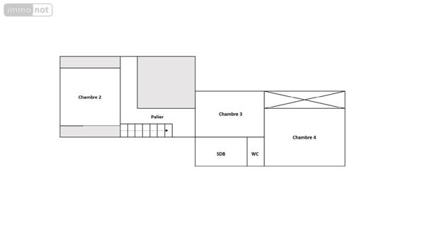
Maison
• 71 m²
| query_stats | -12% | par rapport au prix moyen dans la zone |
| savings | 6.04% | de rentabilité brute |
| place | La Hague | |
| event |
Le 5 novembre
Modifié le 17 décembre |
|