235 000 €
(1 880 €/m²)
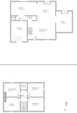
Maison
• 4 pièces
• 125 m²
query_stats | -25% | par rapport au prix moyen dans la zone |
savings | 6.06% | de rentabilité brute |
place | Houppeville | |
event | Aujourd'hui |