trending_down
175 000 €
(1 682,69 €/m²)
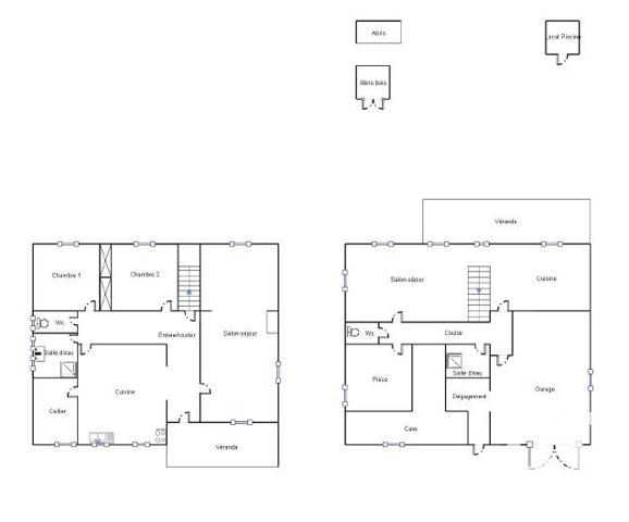
Maison
• 5 pièces
• 104 m²
| query_stats | +2% | par rapport au prix moyen dans la zone |
| place | Mouleydier | |
| event |
Le 21 avril 2025
Modifié le 12 janvier |
|