trending_down
179 655 €
(2 994,25 €/m²)
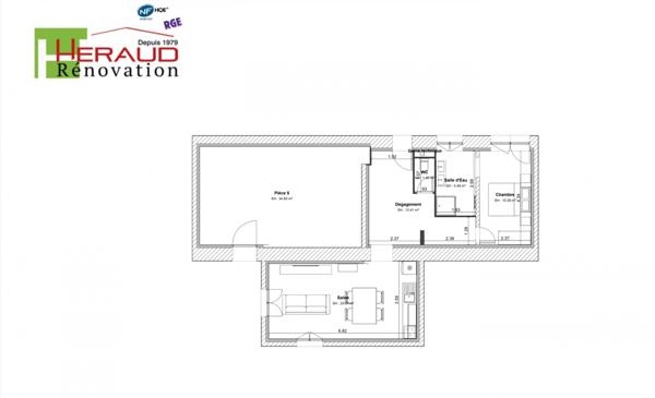
Maison
• 3 pièces
• 60 m²
| query_stats | +46% | par rapport au prix moyen dans la zone |
| place | Lestiac-sur-Garonne | |
| event |
Le 4 novembre 2025
Modifié le 13 janvier |
|