265 000 €
(3 081,4 €/m²)
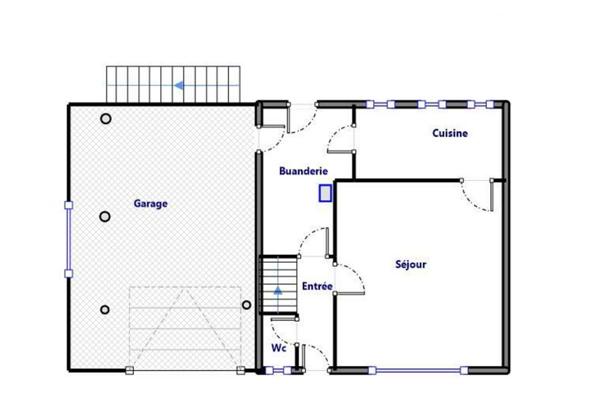
Maison
• 4 pièces
• 86 m²
| query_stats | -28% | par rapport au prix moyen dans la zone |
| savings | 5.43% | de rentabilité brute |
| place | Mérignac, Arlac | |
| event |
Le 9 avril
Modifié le 10 avril |
|