trending_down
500 000 €
(2 475,25 €/m²)
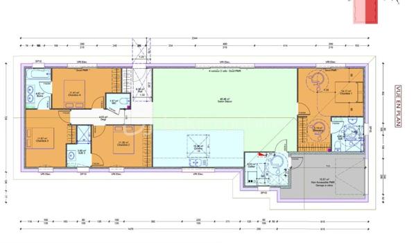
Maison
• 202 m²
| query_stats | -44% | par rapport au prix moyen dans la zone |
| place | Angresse | |
| event |
Le 25 février
Modifié le 15 décembre |
|