trending_down
419 000 €
(2 492,71 €/m²)
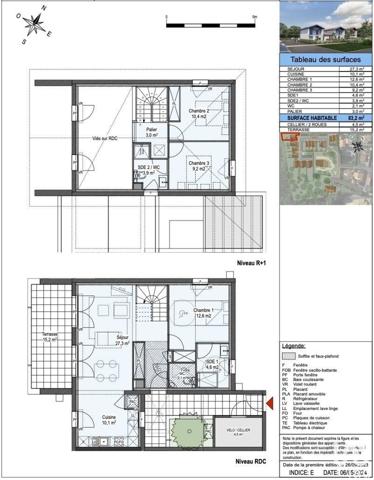
Maison
• 5 pièces
• 168 m²
| query_stats | -35% | par rapport au prix moyen dans la zone |
| place | Saint-Martin-de-Seignanx | |
| event |
Le 4 juillet 2025
Modifié le 27 février |
|