Prix au m²
5 803 €
Entre 3 438 € et 6 269 €

query_statsStatistiques

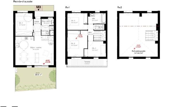
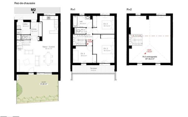
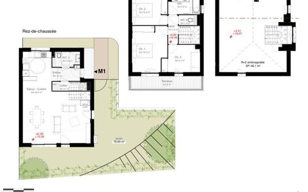
12 maisons à vendre à Bayonne - Beyris

sort
Maison close
Quartier Beyris close

Affinez votre recherche

À voir aussi dans la ville de Bayonne