trending_up
214 000 €
(2 759,15 €/m²)
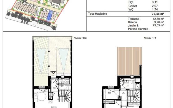
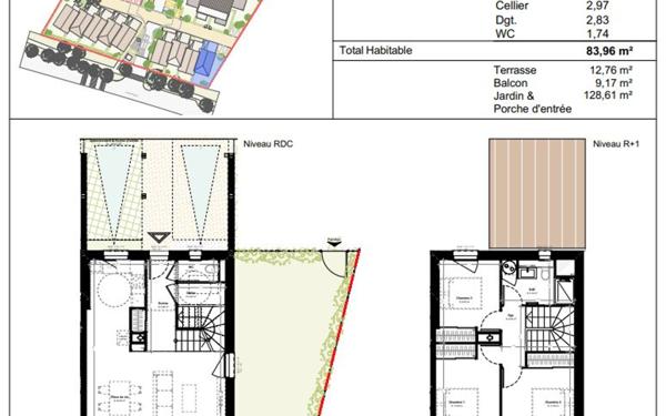
Maison
• 2 pièces
• 78 m²
| query_stats | -1% | par rapport au prix moyen dans la zone |
| savings | 4.43% | de rentabilité brute |
| place | Idron | |
| event |
Le 21 juin 2024
Modifié le 2 mars |
|