trending_down
229 000 €
(2 100,92 €/m²)
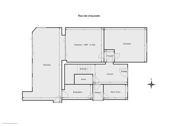
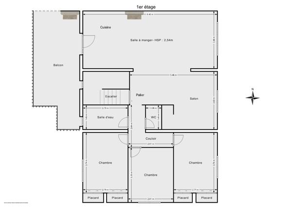
Maison
• 4 pièces
• 109 m²
| query_stats | +35% | par rapport au prix moyen dans la zone |
| savings | 4.72% | de rentabilité brute |
| place | Limoux | |
| event |
Le 1er septembre 2025
Modifié hier |
|