trending_down
323 000 €
(2 858,41 €/m²)
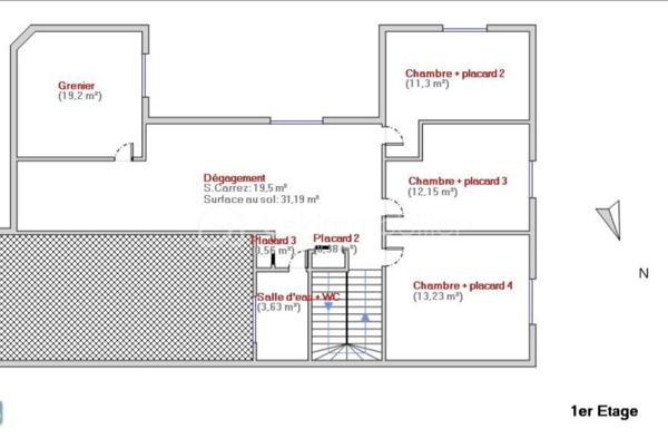
Maison
• 4 pièces
• 113 m²
| query_stats | +10% | par rapport au prix moyen dans la zone |
| place | Rodilhan | |
| event |
Le 9 mars
Modifié le 15 avril |
|