trending_down
220 000 €
(2 200 €/m²)
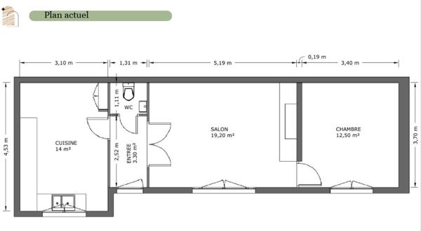
Maison
• 4 pièces
• 100 m²
| query_stats | -2% | par rapport au prix moyen dans la zone |
| savings | 5.86% | de rentabilité brute |
| place | Carbonne | |
| event |
Le 19 octobre
Modifié aujourd'hui |
|