99 500 €
                            
                            
                                (904,55 €/m²)
                            
                        
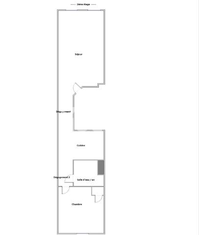
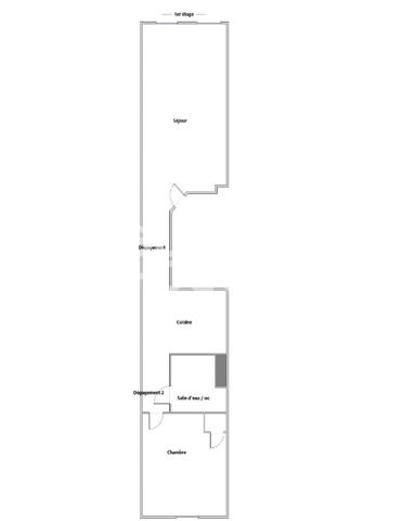
                            Maison
                             • 4 pièces
                             • 110 m²
                        
                        | query_stats | -50% | par rapport au prix moyen dans la zone | 
| savings | 9.15% | de rentabilité brute | 
| place | Villemur-sur-Tarn | |
| event | Aujourd'hui | |