598 000 €
(4 462,69 €/m²)
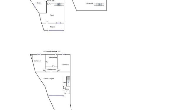
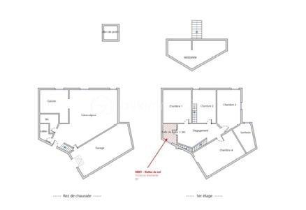
Maison
• 4 pièces
• 134 m²
| query_stats | +39% | par rapport au prix moyen dans la zone |
| savings | 3.34% | de rentabilité brute |
| place | Agde, La Ville | |
| event |
Le 17 décembre
Modifié le 18 décembre |
|