trending_down
247 900 €
(2 986,75 €/m²)
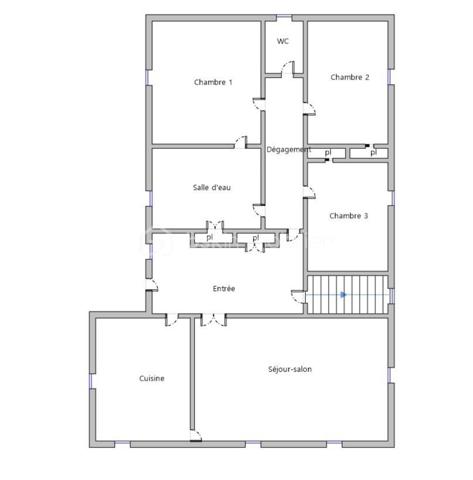
Maison
• 3 pièces
• 83 m²
| query_stats | -7% | par rapport au prix moyen dans la zone |
| place | Gigean | |
| event |
Le 25 mars
Modifié le 8 décembre |
|