trending_down
174 000 €
(1 298,51 €/m²)
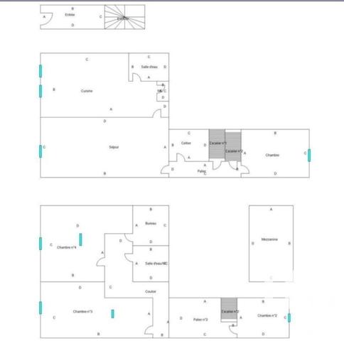
Maison
• 5 pièces
• 134 m²
| query_stats | -42% | par rapport au prix moyen dans la zone |
| place | Roujan | |
| event |
Le 31 août 2024
Modifié le 19 décembre |
|