425 000 €
(1 148,65 €/m²)
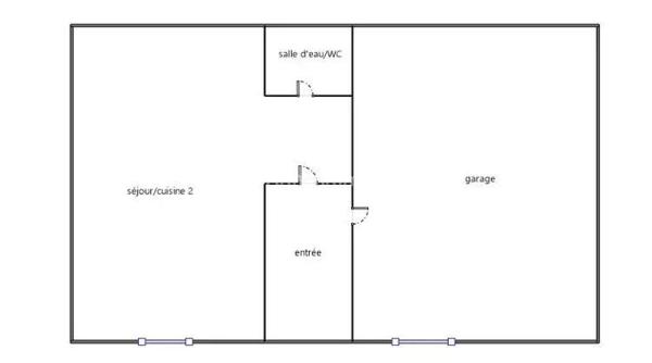
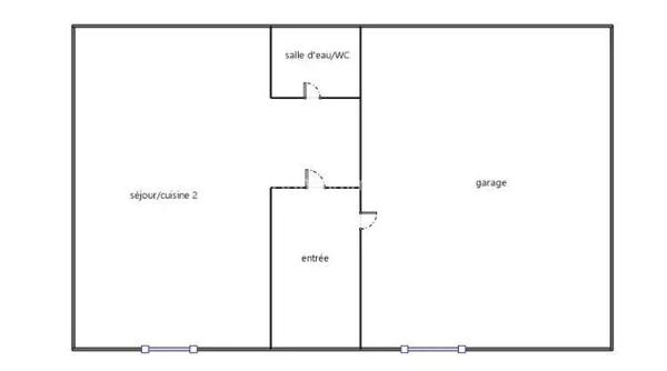
Maison
• 10 pièces
• 370 m²
| query_stats | -27% | par rapport au prix moyen dans la zone |
| place | Lautrec | |
| event | Le 12 décembre | |