trending_down
245 000 €
(2 289,72 €/m²)
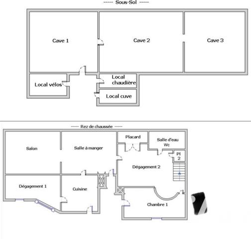
Maison
• 4 pièces
• 107 m²
| query_stats | -5% | par rapport au prix moyen dans la zone |
| place | Les Mées | |
| event |
Le 14 octobre 2025
Modifié aujourd'hui |
|