3 679 000 €
(10 049,17 €/m²)
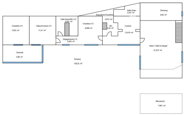
Maison
• 11 pièces
• 366 m²
| query_stats | +76% | par rapport au prix moyen dans la zone |
| place | Menton, Carei-Monti - Mont Gros | |
| event |
Le 20 août
Modifié le 5 décembre |
|